Your Neighbor Rick

Search

1723 W Terrace Drive, Lake Worth Beach, FL 33460

$562,600
Property Type: Residential Bedrooms: 4 Baths: 3 Square Footage: 2,464 Status: Closed
Current Price: $562,600 Last Modified: 3/09/2026

Overview

Description

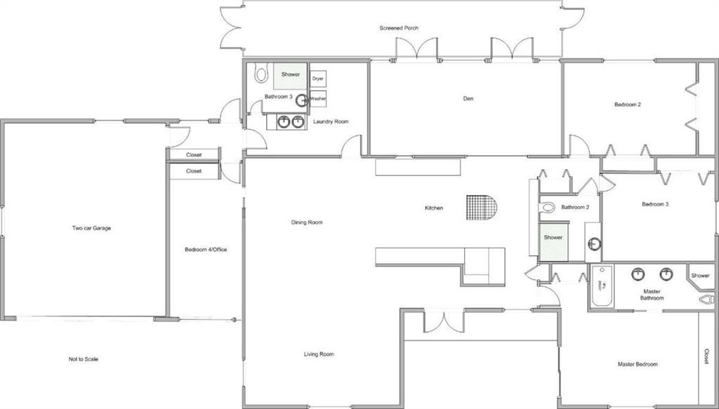
Well maintained 4 bed 3 bath home with remodeled family size kitchen with stainless steel appliances, 2464 sq ft with a canal view, also living room, dining room, den, full laundry room, master suite has shower and a jacuzzi tub. Attached 2 car garage is off a large circular driveway. 1/3 acre plot with fenced backyard and 146 ft waterfront access to C51 canal, access to 80 miles of waterways + 6 lakes. RV parking at side of house. Grid tied solar panels ensure low electric bills.

Listing Details MLS# FX-10281458

Location, Tax & Legal

Area
5660
County
Palm Beach
Parcel ID
38434416150060050
Street #
1723
Street Dir
W
Street Name
Terrace
Street Suffix
Drive
Zip Code
33460
Geo Area
PB19
State/Province
FL
HOPA
No Hopa
Short Sale
No
Tax Year
2020
Zoning
SF-R
Taxes
3869
REO
No

Contract Information

Original List Price
580000
List Price/SqFt
235.39

General Property Description

Type
Single Family Detached
Total Bedrooms
4
Baths - Full
3
Baths - Total
3
Property Condition
New Construction
Year Built
1969
SqFt - Living
2464
Guest House
No
Garage Spaces
2
Homeowners Assoc
None
Membership Fee Required
No
Directions
From 10 Ave and A St, turn North on A to 17th, turn left onto 17th and drive under the 95 and over the railroad crossing. W Terrace Dr is the 2nd road on the right; 1723 is the 5th house on the left.
Subdivision
LAKE CLARKE TERR
Legal Desc
LAKE CLARKE TERRACE LT 5 & S 40 FT OF LT 6 BLK 6
Lot SqFt
15140
Lot Dimensions
0.3476 Acres
Waterfront
Yes
Waterfrontage
146
Front Exp
East
Private Pool
No
Pets Allowed
Yes
Pet Fee
0
HOA/POA/COA (Monthly)
0
Year Roof Installed
0

Status Change Info

Under Contract Date
2021-05-03
Sold Date
2021-05-28
Terms of Sale
Conventional
Sold Price/SqFt
228.33

Office/Member Info

DXORIGMLNO
F10281458
DXORIGMLSID
FLL

Design

< 4 Floors
Yes
Ranch
Yes

More Information

Construction

CBS
Yes

Master Bedroom/Bath

Dual Sinks
Yes
Mstr Bdrm - Ground
Yes

View

Canal
Yes

Rooms

Den/Office
Yes
Laundry-Util/Closet
Yes

Waterfront Details

Canal Width 1 - 80
Yes

Lot Description

1/4 to 1/2 Acre
Yes
Sidewalks
Yes

Equip/Appl Included

Auto Garage Open
Yes
Dishwasher
Yes
Disposal
Yes
Dryer
Yes
Hookup
Yes
Ice Maker
Yes
Microwave
Yes
Range - Electric
Yes
Refrigerator
Yes
Smoke Detector
Yes
Solar Water Heater
Yes
Washer
Yes
Water Heater - Elec
Yes

Cooling

Attic Fan
Yes
Ceiling Fan
Yes
Central
Yes
Electric
Yes
Thermal Fan
Yes

Heating

Central
Yes
Electric
Yes

Exterior Features

Custom Lighting
Yes
Fence
Yes
Fruit Tree(s)
Yes
Screen Porch
Yes

Furnished

Unfurnished
Yes

Interior Features

French Door
Yes
Laundry Tub
Yes
Split Bedroom
Yes

Flooring

Tile
Yes

Utilities

Public Sewer
Yes
Public Water
Yes

Parking

Drive - Circular
Yes
Garage - Attached
Yes
RV/Boat
Yes

Pet Restrictions

No Restrictions
Yes

Roof

Comp Rolled
Yes
Comp Shingle
Yes

Subdiv. Amenities

Sidewalks
Yes
Street Lights
Yes
None
Yes

Terms Considered

Conventional
Yes

Possession

Negotiable
Yes

Dining Area

Dining Family
Yes
Snack Bar
Yes

Taxes

City/County
Yes

Property Features

Design: < 4 Floors; Ranch Construction: CBS View: Canal Waterfront Details: Canal Width 1 - 80 Lot Description: 1/4 to 1/2 Acre; Sidewalks Exterior Features: Custom Lighting; Fence; Fruit Tree(s); Screen Porch Interior Features: French Door; Laundry Tub; Split Bedroom Furnished: Unfurnished Rooms: Den/Office; Laundry-Util/Closet Parking: Drive - Circular; Garage - Attached; RV/Boat Pet Restrictions: No Restrictions Flooring: Tile Heating: Central; Electric Cooling: Attic Fan; Ceiling Fan; Central; Electric; Thermal Fan Dining Area: Dining Family; Snack Bar Roof: Comp Rolled; Comp Shingle Terms Considered: Conventional Utilities: Public Sewer; Public Water Taxes: City/County Possession: Negotiable
Listing Office: Jack Keller Inc
IDX
Last Updated: March - 09 - 2026
This information is not verified for authenticity or accuracy and is not guaranteed and may not reflect all real estate activity in the market. Copyright 2026 Beaches Multiple Listing Service, Inc. All rights reserved. Information Not Guaranteed and Must Be Confirmed by End User. Site contains live data.